Ganz Rösrath soll schöner bleiben!

Rösrath gemeinsam gestalten

Der Aufstellungsbeschluss wurde im letzten Ausschuss nicht gefasst, die Verwaltung kam zu dem Ergebnis, dass das Vorhaben noch nicht so weit ist,

Warum der Kauf richtig war und wie er sich im Haushalt bemerkbar macht. Der Rat Beschloss in seiner letzten Sitzung, am 11.12.2023,

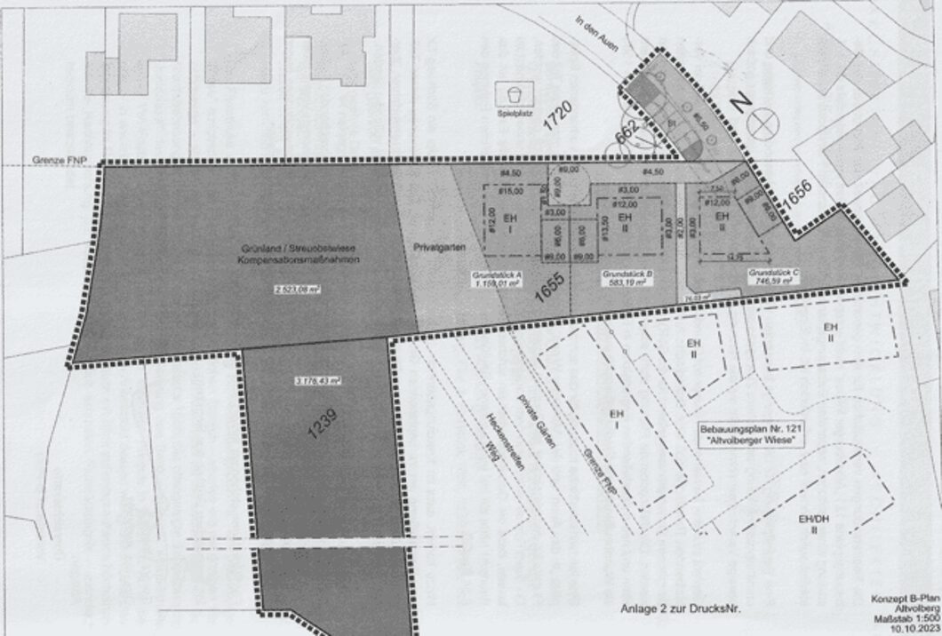
Wie bereits in unserem Bürgerbrief angekündigt, soll das Baugebiet Altvolberg bereits erweitert werden. Diese Befürchtung hatten wir schon, als seiner Zeit der

Liebe Mitbürgerinnen und Mitbürger, liebe Nachbarinnen und Nachbarn, Die Bürgerbriefe unserer Ratsherren umfassen in den Punkten I-IV die Themen, die den gesamten

Beim Thema Altvolberg geht es nicht sauber zu. Neue Sondersitzung am 04.03.2024. Den Gang des Geschehens können Sie zunächst hier nachlesen: „Altvolberg

Die geplanten Unterkünfte sorgten in der Ratssitzung vom 15.01.2024 für Aufsehen. Annähernd 100 Bürgerinnen und Bürger haben sich zur Sitzung eingefunden. Unser Fraktionsvorsitzender hat den Anwesenden noch am Abend der Sitzung ein Schreiben zukommenlassen, dass den Gang des Geschehens wiedergibt und einige offene Fragen aufgeworfen hat. Seitdem sind wir im regen Austausch mit etlichen Anwohnern. Die Anwohner hoffen, dass der Rat den Beschluss wieder umkehrt. So gern wie wir auf Seiten der Bürger stehen, ist es hier schwerer denn je, da die Verwaltung diese Fläche als einzige Möglichkeit präsentiert hat. Wir sehen auch, dass die hohe Konzentration dort im Stadtgebiet nicht einfach unausgesprochen bleiben kann. Allerdings ist die Politik auf die Zuarbeit der Verwaltung angewiesen. Es ist als ehrenamtlicher Stadtrat nicht möglich, selbst nach Grundstücken zu suchen, wir erhalten als solche schon gar keine Auskunft. Insofern ist die Verwaltung am Zug. Wir sind bereit, neu zu beschließen, wenn es eine bessere Alternative gibt. Und wir können heute schon sagen, dass es mit uns bei aller Not auch keine Erweiterung geben wird, diesbezüglich können wir ein Versprechen abgeben! Mehr als 72 Menschen dürfen es da nicht werden. Wir wollen hier auch noch einmal auf das Abstimmungsverhalten der Grünen eingehen, die sich zu weiten Teilen enthalten haben. Nicht etwa, weil sie das Vorhaben verhindern wollen, sondern weil sie dort teurer und größer bauen wollten. Die von der Bürgermeisterin geplante Info-Veranstaltung soll am Montag den 19.02.2024 stattfinden. Stellungnahme des Fraktionsvorsitzenden ForsPark Yannick Steinbach Bürgerbrief

Das Bild zeigt die Pläne des Wöllnerstifts, die ein Seniorenheim planen. In der Sitzung des Planungsausschusses am 05.02.2024 soll der Aufstellungsbeschluss gefasst

Wir als Fraktion sind der Meinung, dass diese Aufgabe bei den Stadtwerken angesiedelt werden muss. Deswegen wollen wir den Auftrag ausschreiben. Wir

Der Bebauungsplan 121 „Altvolberger Wiese“ sollte am 05.12.23 im Planungsausschuss behandelt werden. Der Bebauungsplan wurde zwei Mal offengelegt Das heißt, dass sich

Werden Sie Mitglied oder unterstützen Sie uns!

Mitglied werden

Wählervereinigung ForsPark. Gestalten wir unser Rösrath gemeinsam!

Wollen Sie die Politik in Rösrath mitgestalten?
Wollen Sie sich einbringen und fordern, dass Ihre Stimme endlich Gehör findet?
Damit Politik hier in Rösrath auch für die Rösratherinnen und Rösrather gemacht wird. Für eine lebenswerte Zukunft für Rösrath, unsere Zukunft.

Füllen Sie einfach den Mitgliedsantrag in wenigen Schritten online aus, und dann geht’s los.

Wir freuen uns auf Sie!

Oder stärken Sie die Wählervereinigung ForsPark und unterstützen Sie unsere politische Arbeit mit einer Spende.
Sie unterstützen mit Ihrer Spende nicht nur unsere politische Arbeit im Rat, sondern helfen uns auch, den Bürgerdialog weiter auszubauen.

Unterstützen Sie uns

Rösrath soll schöner bleiben!

Nach oben scrollen